Teasdale st - New residential townhouses
Carlton St - New residential townhouses
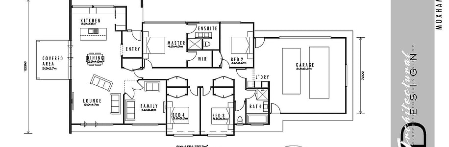
Moxham Road Land House Package
Light Commercial
Cabins/ Sleepouts

